Wipstraat 5A, 3070 Kortenberg
surface habitable
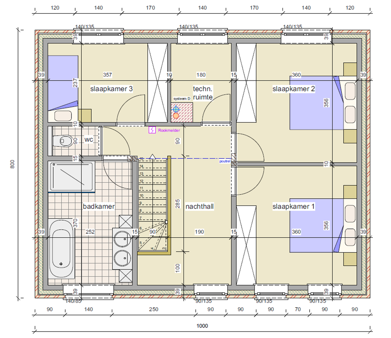
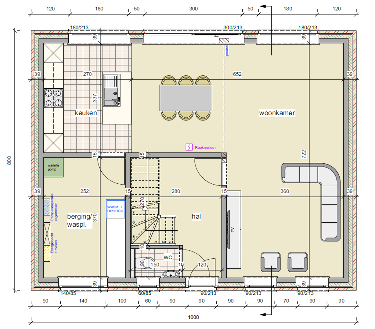
160 m²
Chambre(s)
3
Salle(s) de bain(s)
1
Surface au sol
461 m²
Villa neuve exclusive à construire, situation privilégiée à Kortenberg
Découvrez cette luxueuse villa neuve à construire sur un terrain exclusif de 4a61ca à Kortenberg. Située dans une rue calme, elle vous offre un maximum d’intimité et un environnement idéal pour les familles.
Cette habitation haut de gamme est conçue en collaboration avec notre partenaire exclusif en construction résidentielle et notre architecte, garants d’une finition élégante, moderne et de grande qualité. Vous bénéficiez d’une totale liberté dans le choix du design et des matériaux, afin que la maison soit réalisée entièrement selon vos souhaits et besoins.
Agencement & conception :
✔ Spacieux espaces de vie lumineux au design intemporel et élégant
✔ Finitions haut de gamme avec des matériaux soigneusement sélectionnés
✔ Architecture fonctionnelle et esthétique alliant luxe et confort
✔ Construction durable et économe en énergie grâce aux techniques les plus récentes
L’emplacement combine le meilleur des deux mondes : vivre au calme dans un cadre verdoyant, tout en profitant d’un accès aisé au centre de Kortenberg et aux principaux axes routiers. Commerces, écoles, infrastructures sportives et transports en commun se trouvent à proximité, garantissant un cadre de vie particulièrement pratique et confortable.
En résumé, l’emplacement idéal pour celles et ceux qui souhaitent vivre au calme et dans la verdure, avec toutes les facilités à portée de main !
Avec cette villa, vous êtes accompagné(e) de A à Z, avec un suivi personnalisé et une solution globale au cœur du projet.
Vous souhaitez en savoir plus sur les possibilités ? Nous vous accueillons volontiers à notre bureau pour une présentation personnalisée.
Contactez-nous au 02/731 07 07 ou par e-mail à immo@home-consult.be
Découvrez cette luxueuse villa neuve à construire sur un terrain exclusif de 4a61ca à Kortenberg. Située dans une rue calme, elle vous offre un maximum d’intimité et un environnement idéal pour les familles.
Cette habitation haut de gamme est conçue en collaboration avec notre partenaire exclusif en construction résidentielle et notre architecte, garants d’une finition élégante, moderne et de grande qualité. Vous bénéficiez d’une totale liberté dans le choix du design et des matériaux, afin que la maison soit réalisée entièrement selon vos souhaits et besoins.
Agencement & conception :
✔ Spacieux espaces de vie lumineux au design intemporel et élégant
✔ Finitions haut de gamme avec des matériaux soigneusement sélectionnés
✔ Architecture fonctionnelle et esthétique alliant luxe et confort
✔ Construction durable et économe en énergie grâce aux techniques les plus récentes
L’emplacement combine le meilleur des deux mondes : vivre au calme dans un cadre verdoyant, tout en profitant d’un accès aisé au centre de Kortenberg et aux principaux axes routiers. Commerces, écoles, infrastructures sportives et transports en commun se trouvent à proximité, garantissant un cadre de vie particulièrement pratique et confortable.
En résumé, l’emplacement idéal pour celles et ceux qui souhaitent vivre au calme et dans la verdure, avec toutes les facilités à portée de main !
Avec cette villa, vous êtes accompagné(e) de A à Z, avec un suivi personnalisé et une solution globale au cœur du projet.
Vous souhaitez en savoir plus sur les possibilités ? Nous vous accueillons volontiers à notre bureau pour une présentation personnalisée.
Contactez-nous au 02/731 07 07 ou par e-mail à immo@home-consult.be
Finances
prix
€ 559.000
disponibilité
A l'acte
dans le système de TVA
oui
Bâtiment
surface habitable
160,00 m²
construction
4 façades
surface au sol
461,00 m²
jardin
non
surface garage
Aménagement
chambres
3
salles de bains
1
terrasse
non
Information sur l'urbanisme
information urbaine
oui



