Sparrendreef 7, 1910 Kampenhout
Surface lot
1958 m²
FOR SALE: Exclusive and discreetly located building plot with permit in the prestigious Sparrendreef – Kampenhout
Address: Sparrendreef 7, 1910 Kampenhout
Plot size: 1,958 m² | Asking price: €349.000
In one of Kampenhout’s most sought-after and residential avenues – the Sparrendreef – we proudly present this exceptional rear-positioned building plot at number 7. A rare opportunity for those in search of space, luxury, and complete privacy, nestled in lush greenery.
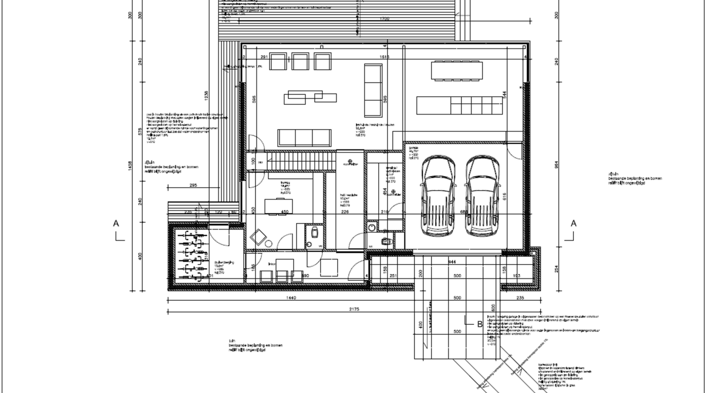
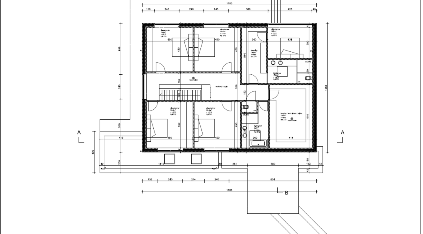
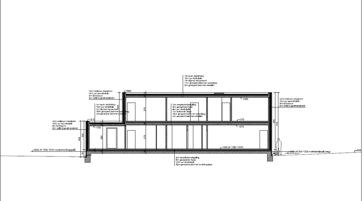
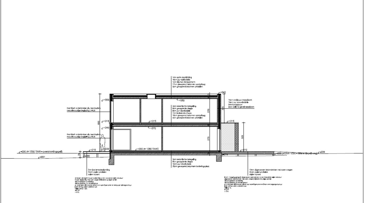
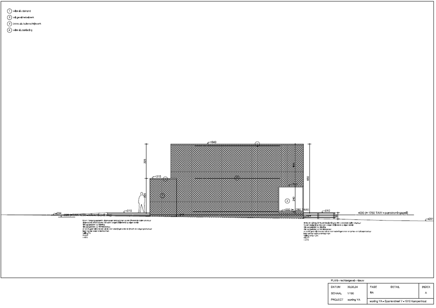
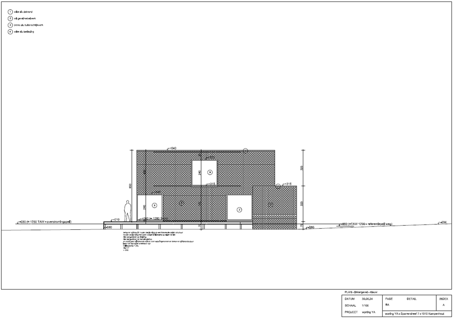
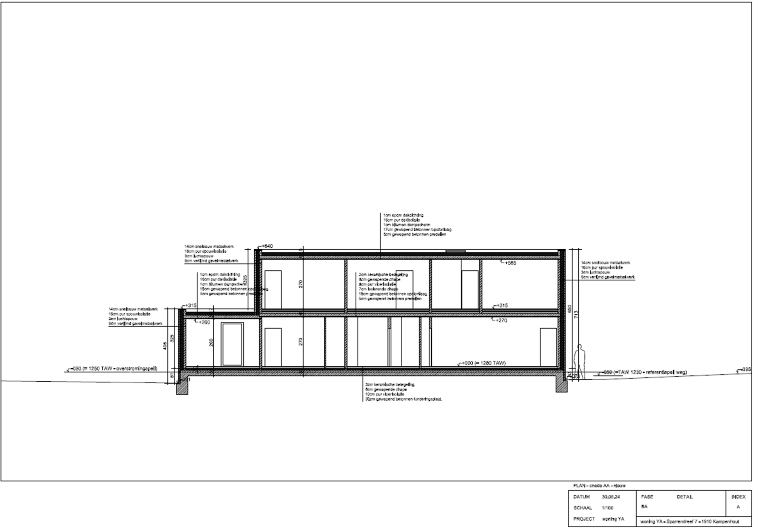
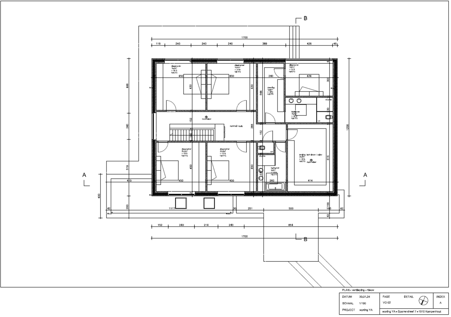
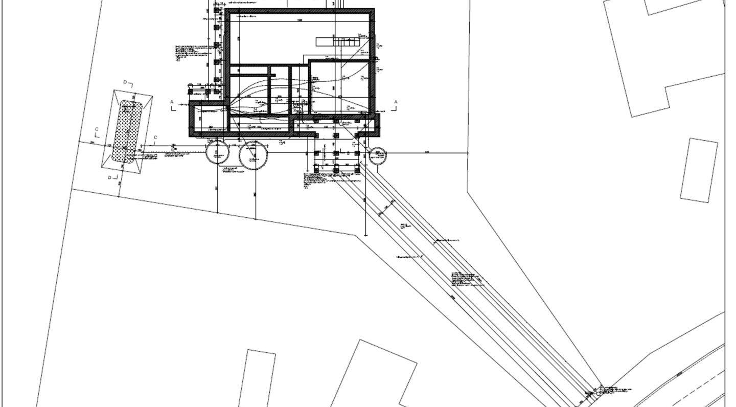
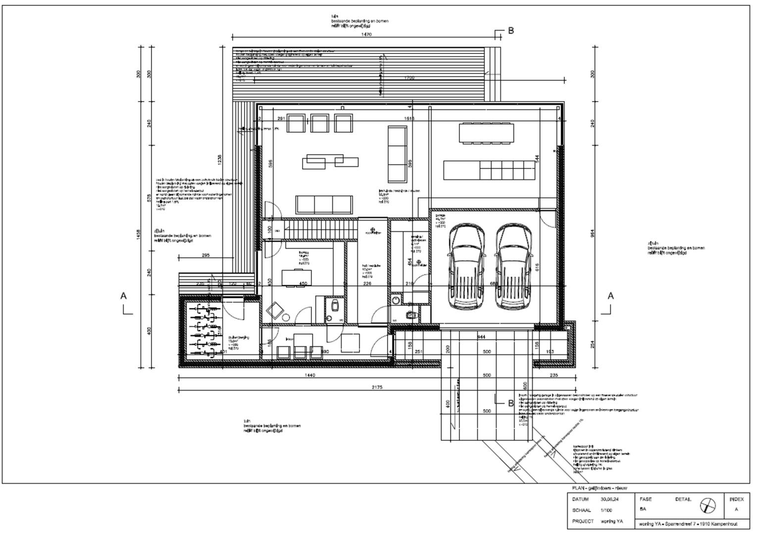
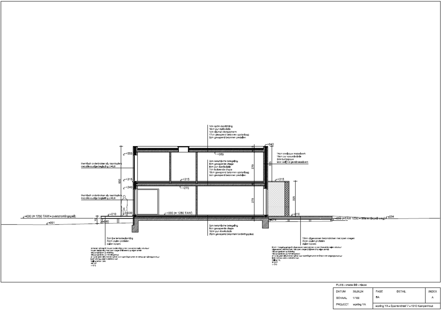
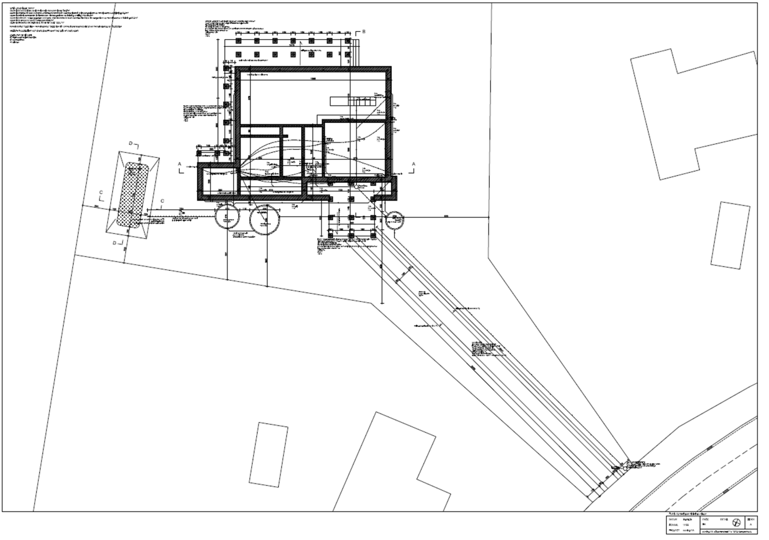
Important: This plot is sold with an already approved urban planning permit for the construction of an exclusive villa with a façade width of 22.75 meters and a building depth of 14.78 meters, spread across two floors. This allows you to start your building project immediately without administrative delays or complications.
This generous plot, surrounded by beautiful mature trees, creates a unique sense of peace and seclusion. The natural vegetation ensures exceptional privacy and provides the ideal setting for a luxurious home with a potential living area of approximately 500 m² — perfectly suited for large families or professionals such as lawyers, notaries, doctors, accountants, etc.
Highlights of this building plot:
• Located in a beautiful, green, and exclusive neighborhood
• Exceptional privacy thanks to mature trees surrounding the property
• Spacious building potential with an approved living area of approx. 500 m²
• Architect’s plans already drawn up, with half of the architect’s fees already paid. The involved architect offers full project management from A to Z, with the possibility of collaborating with another architect if desired
• Urban planning permit already granted, immediately available upon signing
• Asking price: €349.000
This building plot offers a perfect blend of luxury, tranquility, and privacy, located in a prime location in Kampenhout. Close to major roads and amenities, yet fully surrounded by nature.
Would you like to personally discover this unique location? Contact Home Consult today for more information or to schedule a private visit. We are happy to guide you professionally in realizing your exclusive residential project.
Financial
price
€ 349.000
availability
At deed
cadastral income
€ 21
cadastral income indexed
€ 46
tax year
2024
servitude
no
Building
surface lot
1.958,00 m²
garden
no
surface garage
Division
terrace
no
Urban planning information
designation
Parkland
planning permission
yes
subdivision permit
yes
preemption right
no
P-score
B



















