Sparrendreef 7, 1910 Kampenhout
Perceel opp.
1958 m²
TE KOOP: Exclusieve en discreet gelegen bouwgrond mét vergunning in de prestigieuze Sparrendreef – Kampenhout
Adres: Sparrendreef 7, 1910 Kampenhout
Perceeloppervlakte: 1.958 m² | Vraagprijs: €349.000
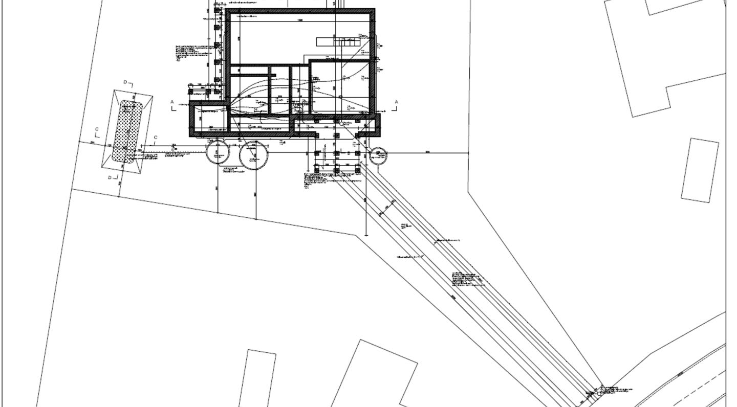
In een van de meest begeerde en residentiële lanen van Kampenhout – de Sparrendreef – presenteren wij u met trots deze uitzonderlijke achterliggende bouwgrond op nummer 7. Een zeldzame opportuniteit voor wie op zoek is naar ruimte, luxe en absolute privacy, verscholen in het groen.
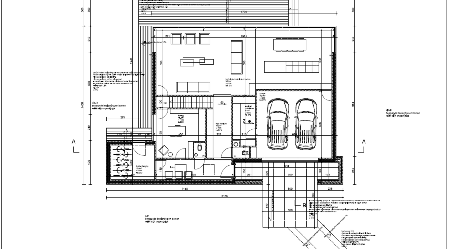
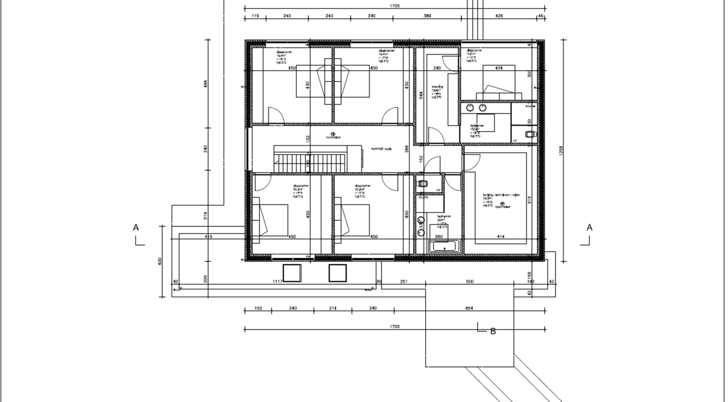
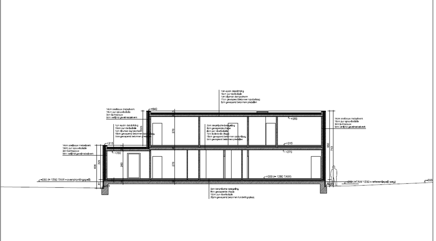
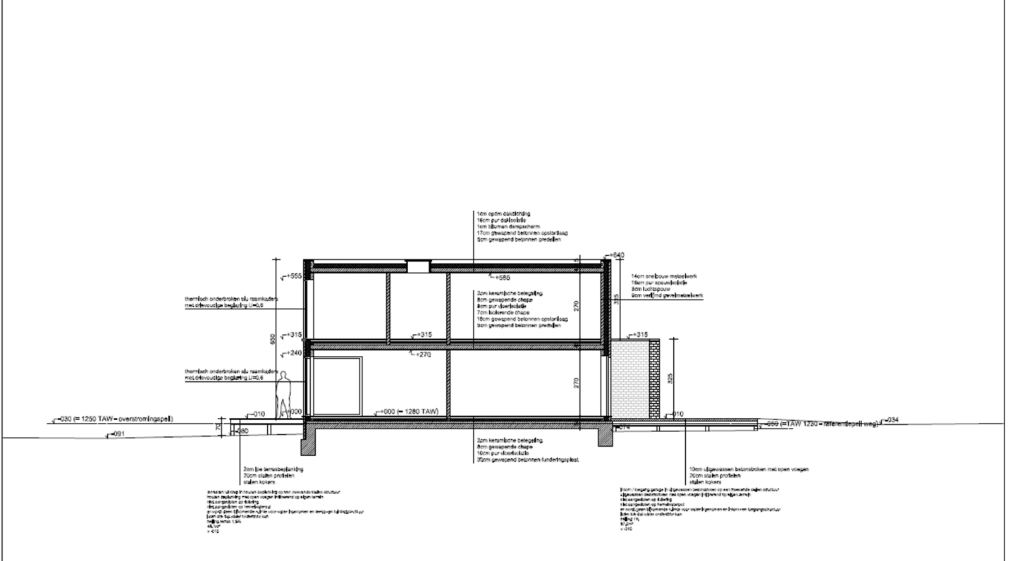
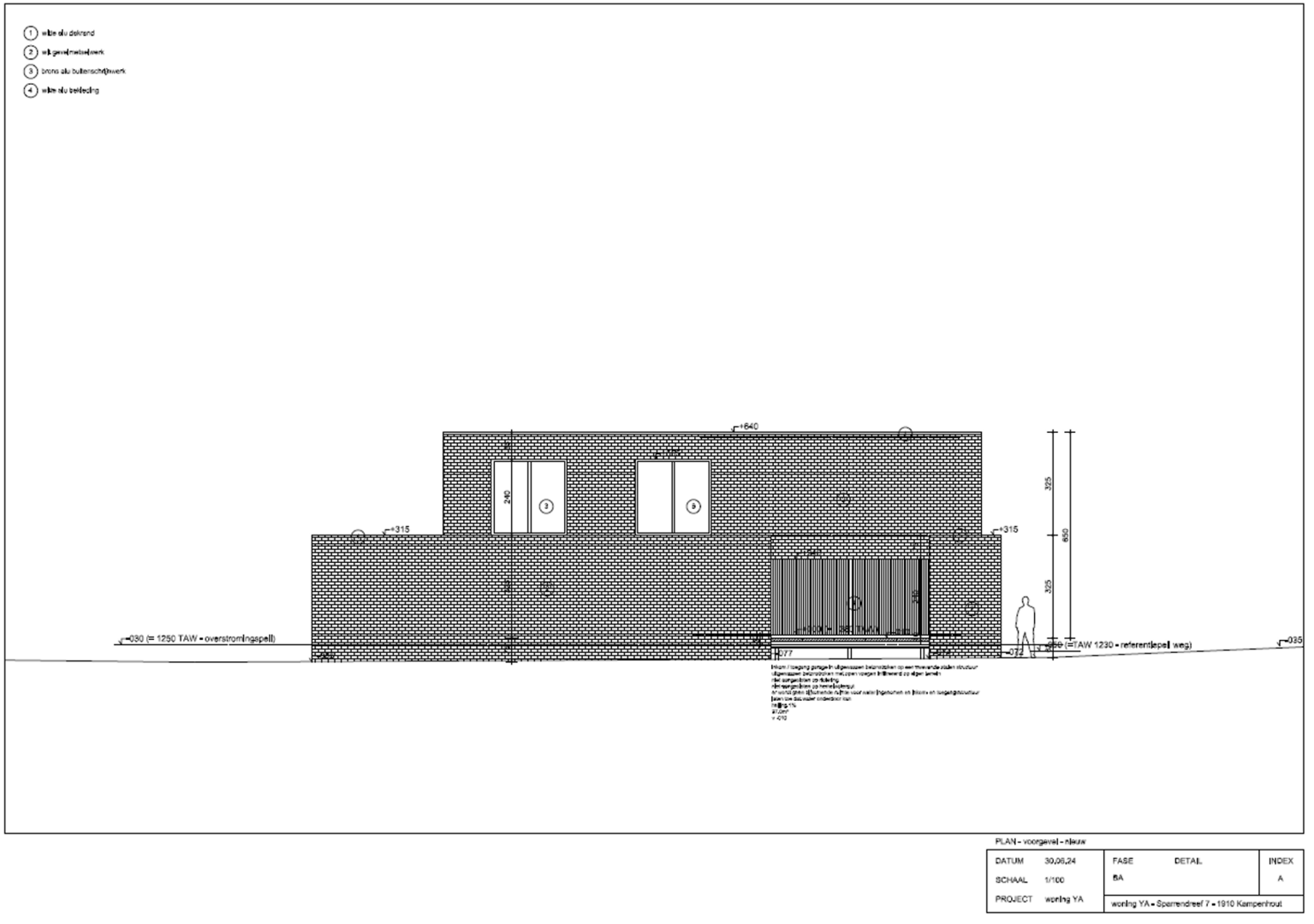
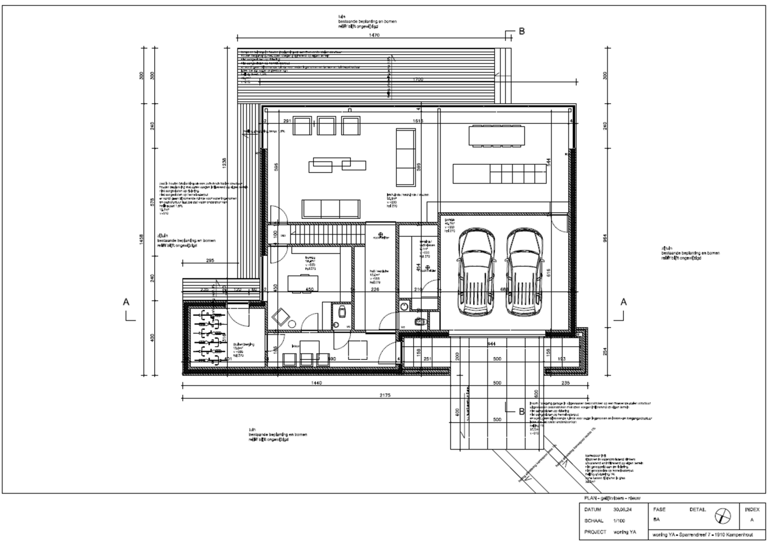
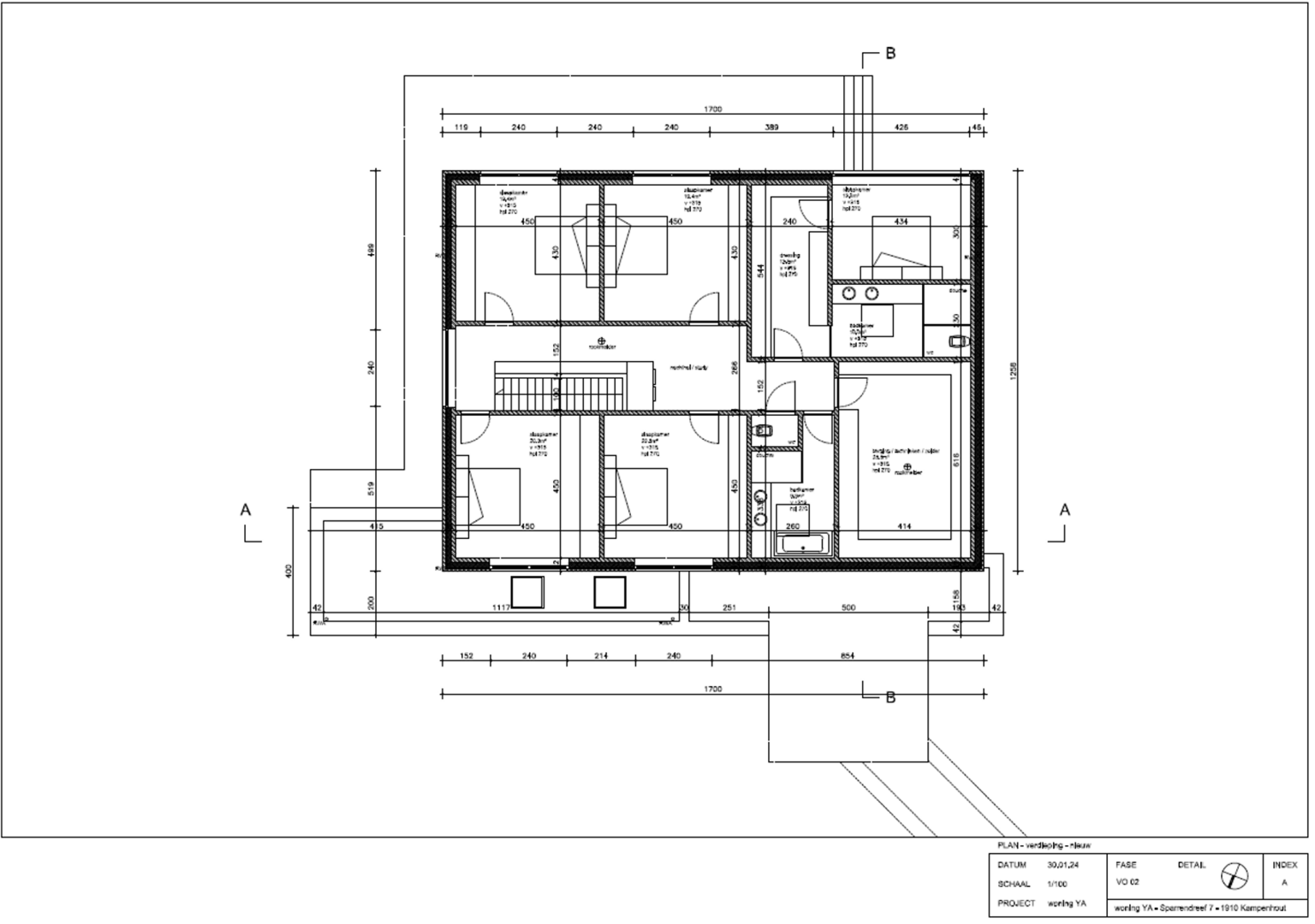
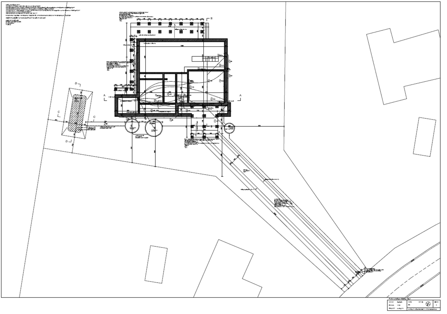
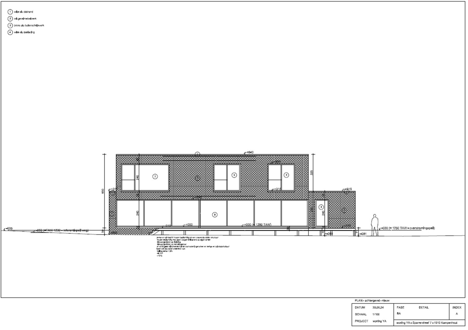
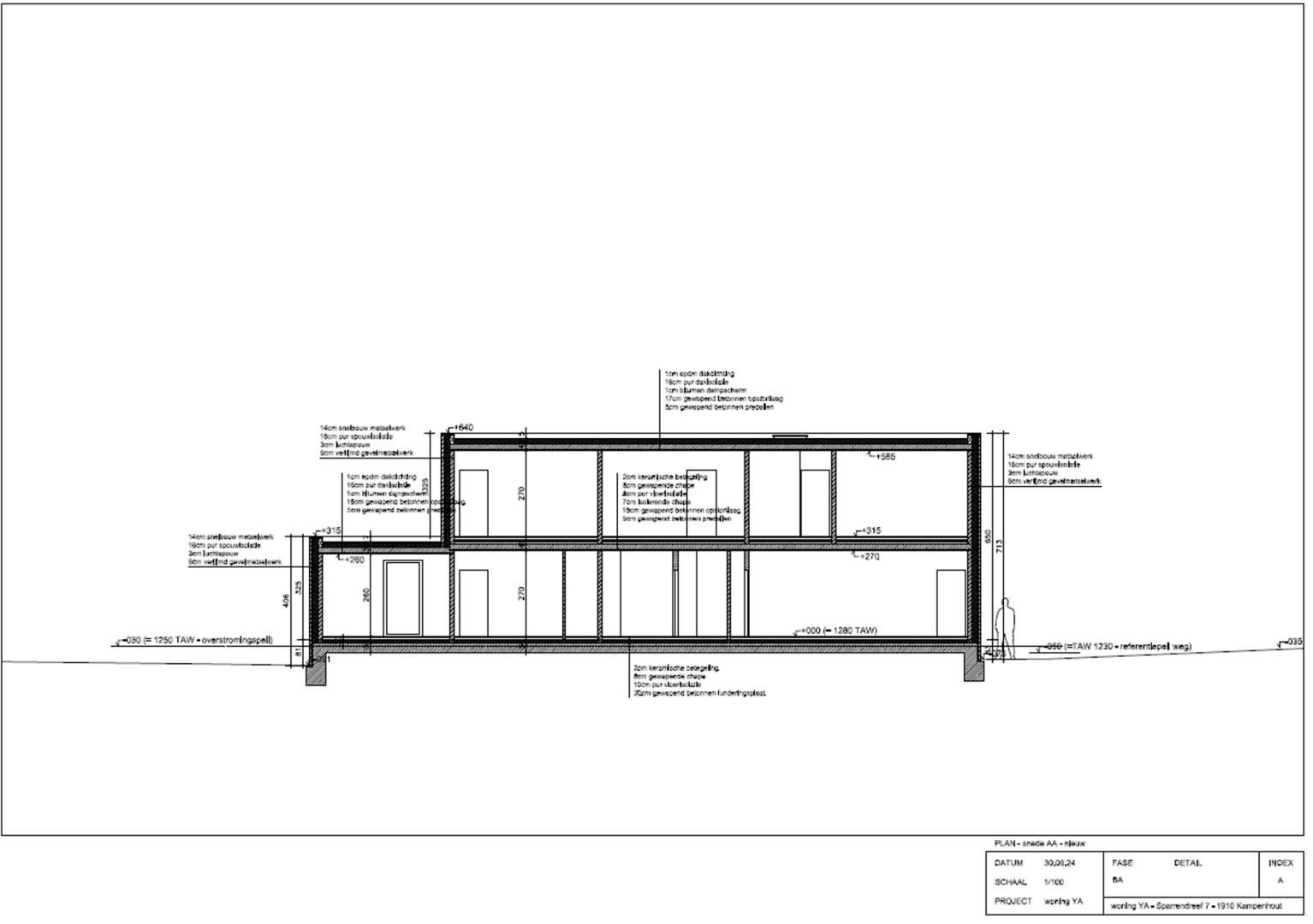
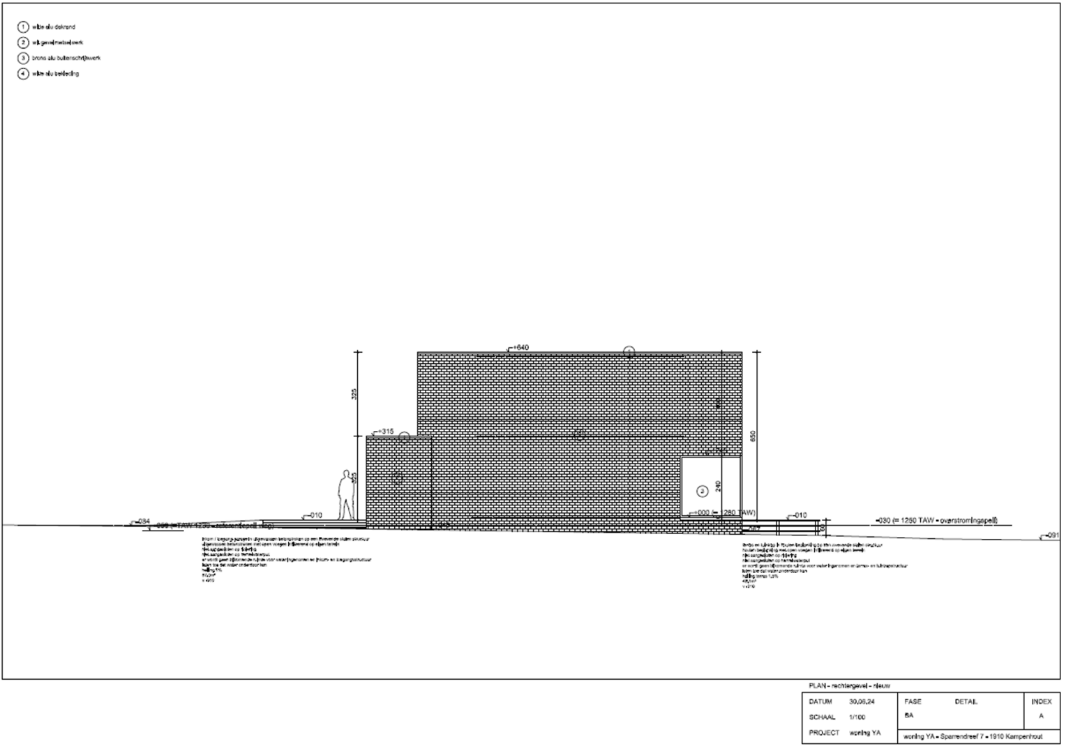
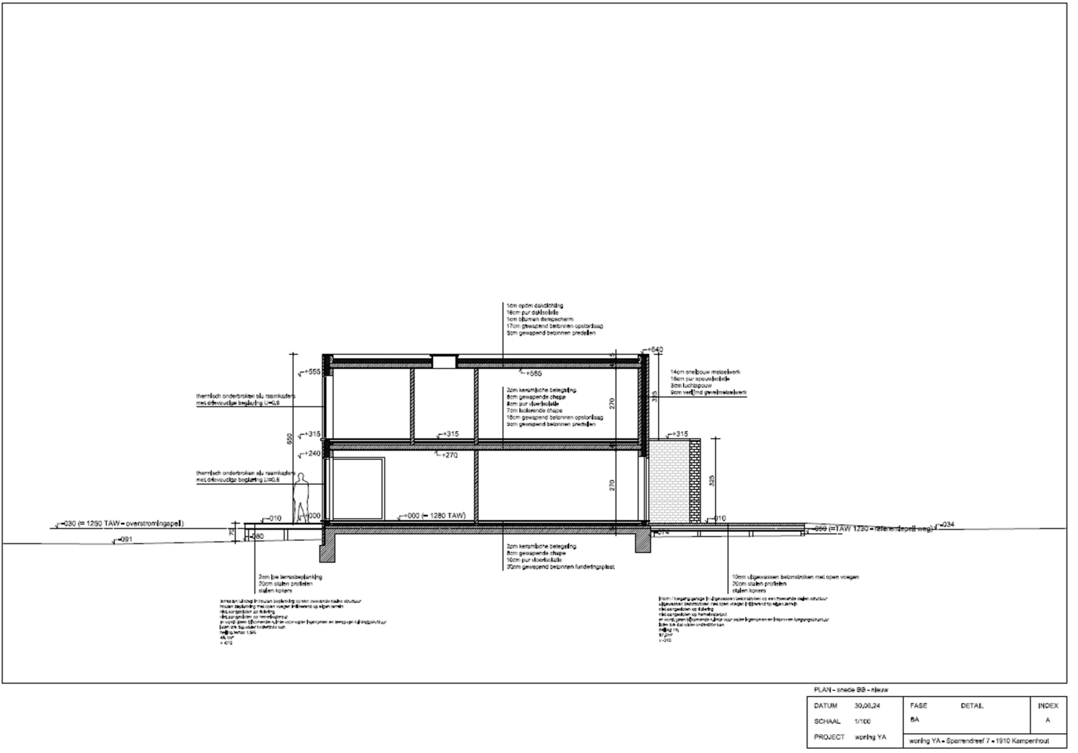
Belangrijk: Deze bouwgrond wordt verkocht met een reeds verkregen stedenbouwkundige vergunning voor het oprichten van een exclusieve villa met een gevelbreedte van 22,75 meter en een bouwdiepte van 14,78 meter, gespreid over twee bouwlagen. Dit laat u toe om zonder tijdsverlies en administratieve rompslomp van start te gaan met uw bouwproject.
Dit royaal perceel, omgeven door prachtige volwassen bomen, creëert een uniek gevoel van rust en beschutting. De natuurlijke begroeiing waarborgt een uitzonderlijke mate van privacy en vormt het ideale decor voor het bouwen van een luxueuze woning met een potentiële bewoonbare oppervlakte van circa 500 m² — perfect geschikt voor ruime gezinnen of vrije beroepers zoals advocaten, notarissen, artsen, accountants, enz.
Troeven van deze bouwgrond:
• Gelegen in een prachtige, groene en exclusieve wijk
• Uitzonderlijke privacy dankzij de volwassen bomen rondom het perceel
• Ruime bouwmogelijkheden met een vergunde bewoonbare oppervlakte van +- 500 m²
• Reeds opgemaakte architectenplannen, waarbij de helft van de architectkosten reeds voldaan is. De betrokken architect biedt tevens volledige projectopvolging van A tot Z aan, met de mogelijkheid om desgewenst met een andere architect samen te werken.
• Stedenbouwkundige vergunning reeds verleend, direct beschikbaar bij akte
• Vraagprijs: €349.000
Deze bouwgrond biedt een perfecte symbiose van luxe, rust en privacy, gelegen op een absolute toplocatie in Kampenhout. Op korte afstand van belangrijke verbindingswegen en voorzieningen, doch volledig omgeven door natuur.
Wenst u deze unieke locatie persoonlijk te ontdekken? Neem dan vandaag nog contact op met Home Consult voor bijkomende informatie of het inplannen van een discrete bezichtiging. Wij staan u graag professioneel bij in de realisatie van uw exclusief woonproject.
Financieel
prijs
€ 349.000
beschikbaarheid
Vanaf akte
kadastraal inkomen
€ 21
geïndexeerd kadastraal inkomen
€ 46
aanslagjaar
2024
servitude
nee
Algemeen
perceel opp.
1.958,00 m²
tuin
nee
oppervlakte garage
Indeling
terras
nee
Stedenbouw en ordening
bestemming
Parkgebied
bouwvergunning
ja
verkavelingsvergunning
ja
voorkooprecht
nee
P-score
B



















