Gemeenteplein 23/001, 3040 Huldenberg
surface habitable
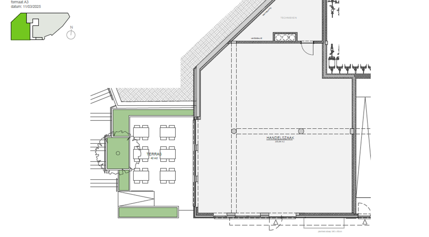
205 m²
Au cœur de Huldenberg, sur la Place Communale, ce rez-de-chaussée commercial exceptionnel d’environ 205 m² offre une large vitrine et une spacieuse terrasse ensoleillée de 42 m². Grâce à son emplacement central, votre activité bénéficiera d’une visibilité optimale, d’un accès aisé et d’excellentes connexions vers Louvain, Bruxelles, Tervuren, Zaventem et le ring R0.
Tous les services, commerces et transports publics se trouvent à distance de marche.
Atouts
Surface commerciale de 205 m² avec large vitrine
Terrasse ensoleillée de 42 m²
Situation centrale avec excellentes liaisons
Parkings publics à proximité
Aménagement et finitions entièrement personnalisables
Affectations possibles
Idéal pour professions libérales (médicales, paramédicales, avocat, notaire…), bureaux, commerce de détail, showroom ou café/lunch bar (sous réserve d’autorisation).
Prix
Casco : 450.000 € (hors TVA et frais d’enregistrement)
Choisissez un espace commercial à aménager selon votre concept et votre style.
🌟 L’opportunité d’implanter votre activité dans un lieu central, visible et à fort potentiel de croissance.
📞 02 731 07 07 ✉️ immo@home-consult.be 🏡 Home Consult
Finances
prix
€ 450.000
disponibilité
A la livraison
Bâtiment
surface habitable
205,00 m²
jardin
non
surface garage
Aménagement
terrasse
non






