Gemeenteplein 23/001, 3040 Huldenberg
bew. opp.
205 m²
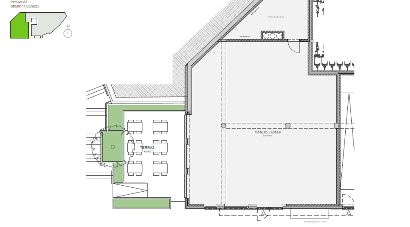
TE KOOP: Casco handelsgelijkvloers van 205 m² met ruim terras (42 m²) — Project Casino, Huldenberg (Gemeenteplein 23)
In het hart van Huldenberg, pal aan het Gemeenteplein, bevindt zich dit uitzonderlijk handelsgelijkvloers van ca. 205 m² met een brede etalage en een ruim terras van 42 m². Dankzij de centrale ligging geniet uw onderneming hier van maximale zichtbaarheid, vlotte bereikbaarheid en een uitstekende connectie met Leuven, Brussel, Tervuren, Zaventem en de R0.
Alle voorzieningen zoals winkels, diensten en openbaar vervoer bevinden zich op wandelafstand.
Troeven
- Handelsoppervlakte van 205 m² met brede vitrine
- Zonnig terras van 42 m²
- Centrale ligging met uitstekende verbindingen
- Parkeergelegenheid in de nabije omgeving
- Flexibele indeling en afwerking volledig naar wens
Mogelijke bestemmingen
Perfect geschikt voor vrij beroep (medisch, paramedisch, advocaat, notaris, …), kantoorruimte, detailhandel, showroom of koffie-/lunchbar (mits vergunning).
Prijs
Casco-afwerking: € 450.000 (excl. btw en registratiekosten)
Kies voor een casco handelsruimte die u volledig kan inrichten volgens uw eigen concept, stijl en identiteit.
🌟 Dé kans om uw zaak te vestigen op een zichtbare en centrale toplocatie met sterk groeipotentieel.
📞 02 731 07 07 ✉️ immo@home-consult.be 🏡 Home Consult
Financieel
prijs
€ 450.000
beschikbaarheid
Bij oplevering
Algemeen
bewoonbare opp.
205,00 m²
tuin
nee
oppervlakte garage
Indeling
terras
nee






